center dedicated to the promotion of emerging artists in seoul, korea. situated on a triangular site,
the design aims to celebrate and inspire the tenants as well as to create a clear expression of
the multi-purpose function of the building.

located in a dense part of the city with a number of universities in its vicinity, the new center draws from the energy of the site while establishing a visually-arresting identity within the urban context. the exterior features a gold-yellow frit-patterned glass which creates angled planes on the facade. resembling a gem, the structure becomes a landmark for the public.
a public passage which runs through the building encourages pedestrians into the interior, facilitating the use of creative spaces within. retail spaces located on the ground floor enable the building with commercial opportunities.



detail of facade treatment

transparency of the ground floor at night

roof top pavilion

physical models

physical model studies

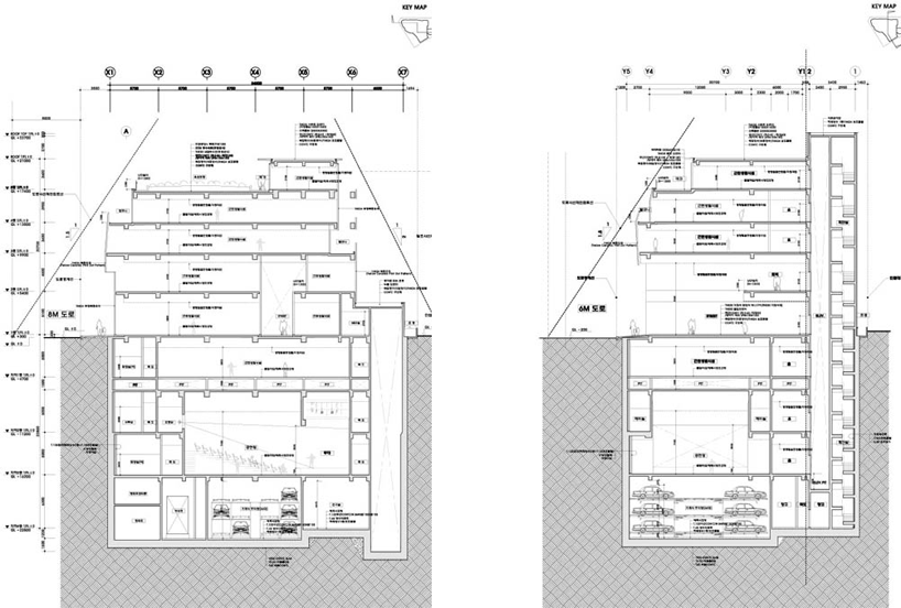
drawings of the faceted facade

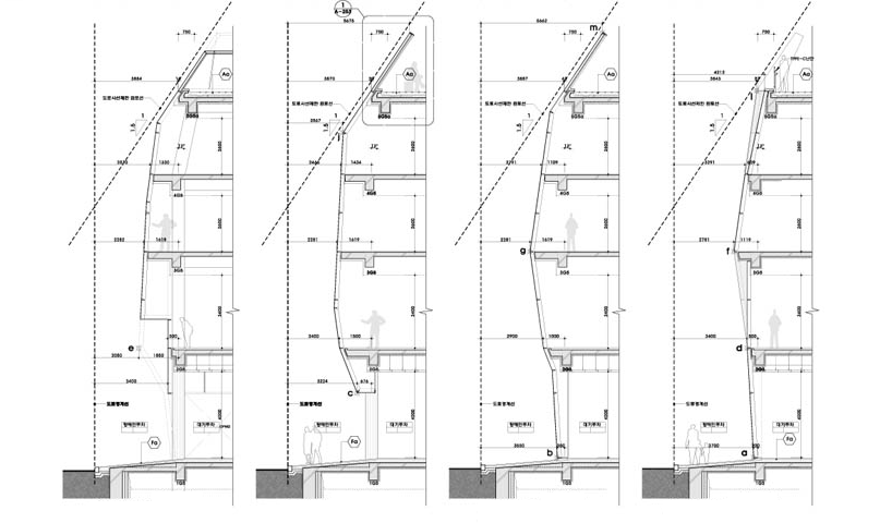
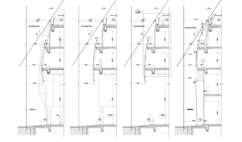
wall sections


project info:
jun mitsui & associates architects: jun mitsui, nicolai kruger, ray wu,
minsu kim, yoshie shinbo
unsangdong architects:jang yoon gyoo, shin chang hoon, lee joon phyo,
moon sang ho, kim se jin, kim bong gyun, kang soon hyung
structure: reinforced concrete
storeys: 4 below grade, 5 above grade
mechanical engineer: yo woon dong mechanical engineers
structural engineer: harmony structure engineering
contractor: sangji construction
total floor area: 4,316.9 m2
site area: 971.6 m2-------------------------------------------------------------
'yellow diamond' by tokyo-based practice jun mitsui & associates architects is a multi-storey
center dedicated to the promotion of emerging artists in seoul, korea. situated on a triangular site,
the design aims to celebrate and inspire the tenants as well as to create a clear expression of
the multi-purpose function of the building.




detail of facade treatment

transparency of the ground floor at night

roof top pavilion


physical model studies

drawings of the faceted facade

wall sections

